

Restyling uffici Hideal
Client: Hideal
Where: Milano
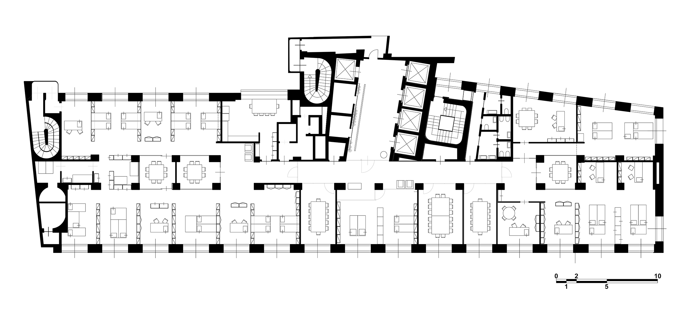
La sede milanese di Hideal, una società indipendente di consulenza immobiliare e di infrastrutture occupa un intero piano di un edificio storico disegnato dall’architetto Gio Ponti. Lo spazio, che si sviluppa trasversalmente rispetto alla lobby d’ingresso, è stato suddiviso in due ampie aree open space collegate da un lungo corridoio di distribuzione su cui affacciano le sale riunioni e le aree di servizio.
The Milanese headquarters of Hideal, an independent real estate and infrastructure advisory company, occupies a whole floor of a historical building designed by architect Gio Ponti. Office space layout is subdivided into two large open-space areas, linked by a long distribution corridor which also connects meeting rooms and service space .







